◆14階建ての10階部分
◆南東向き
◆引渡猶予期間10日あり
| 価格 | 780万円 |
|---|---|
| 種別 | 中古マンション |
| 間取 | 3LDK |
| 所在地 | 兵庫県神戸市西区池上1丁目 朝日プラザCITYウエストヒル神戸B棟 10階 |
| 交通 | 神戸市西神・山手線 伊川谷駅 バス(池上5丁目 乗6分 停歩11分) JR山陽本線 明石駅 徒歩3760m 徒歩47分 バス(池上2丁目 乗31分 停歩4分) |
◆14階建ての10階部分
◆南東向き
◆引渡猶予期間10日あり
| 築年月 | 1990/09 | 新築/中古 | 中古 |
|---|---|---|---|
| 面積 | 69.92m² | 計測方式 | 壁芯 |
| バルコニー | 10.57m² | 向き | 南東 |
| 建物階数 | 地上14階 | 部屋階数 | 10階 |
| 部屋/区画番号 | 10階 | 総戸/区画数 | 582戸 |
| 建物構造 | SRC | ||
| 管理形態 | 全部委託 管理人常駐 管理組合有 | ||
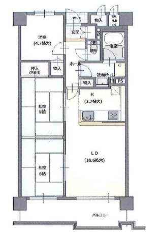
| 間取内容 | LD10畳 1室 K3.7畳 1室 和室6畳 2室 洋室4.7畳 1室 |
||
| 住宅保険料 | |||
| 駐車場 | 取引態様 | 仲介 | |
| 引渡/入居時期 | 相談 | 現況 | 居住中 |
| 自社物 | 先物 | 状態 | 売出中 |
| 共益費・管理費 | 11540円 | 修繕積立金 | 3,840円 |
| 周辺環境 |
校区(長坂小学校 長坂中学校 )
|
||
| 物件番号 | 11329 | ||
| 設備・条件 | カウンターキッチン バス・トイレ別 エレベータ バルコニー フローリング | ||